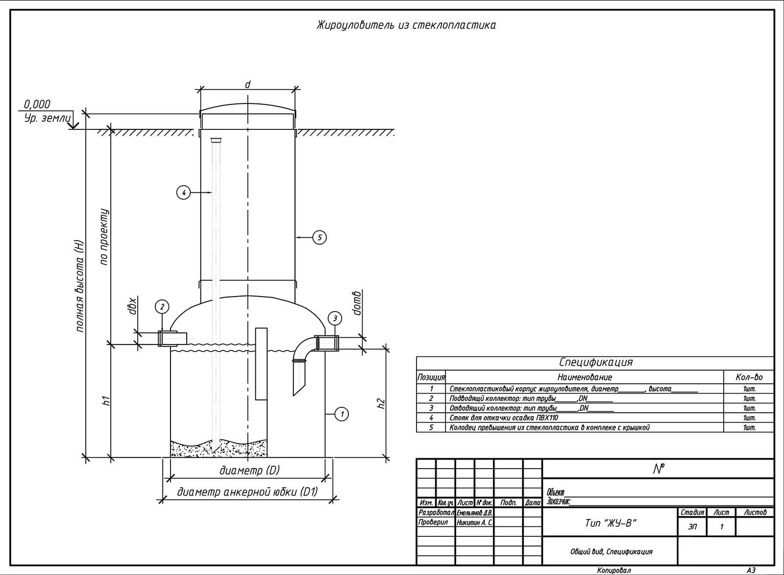
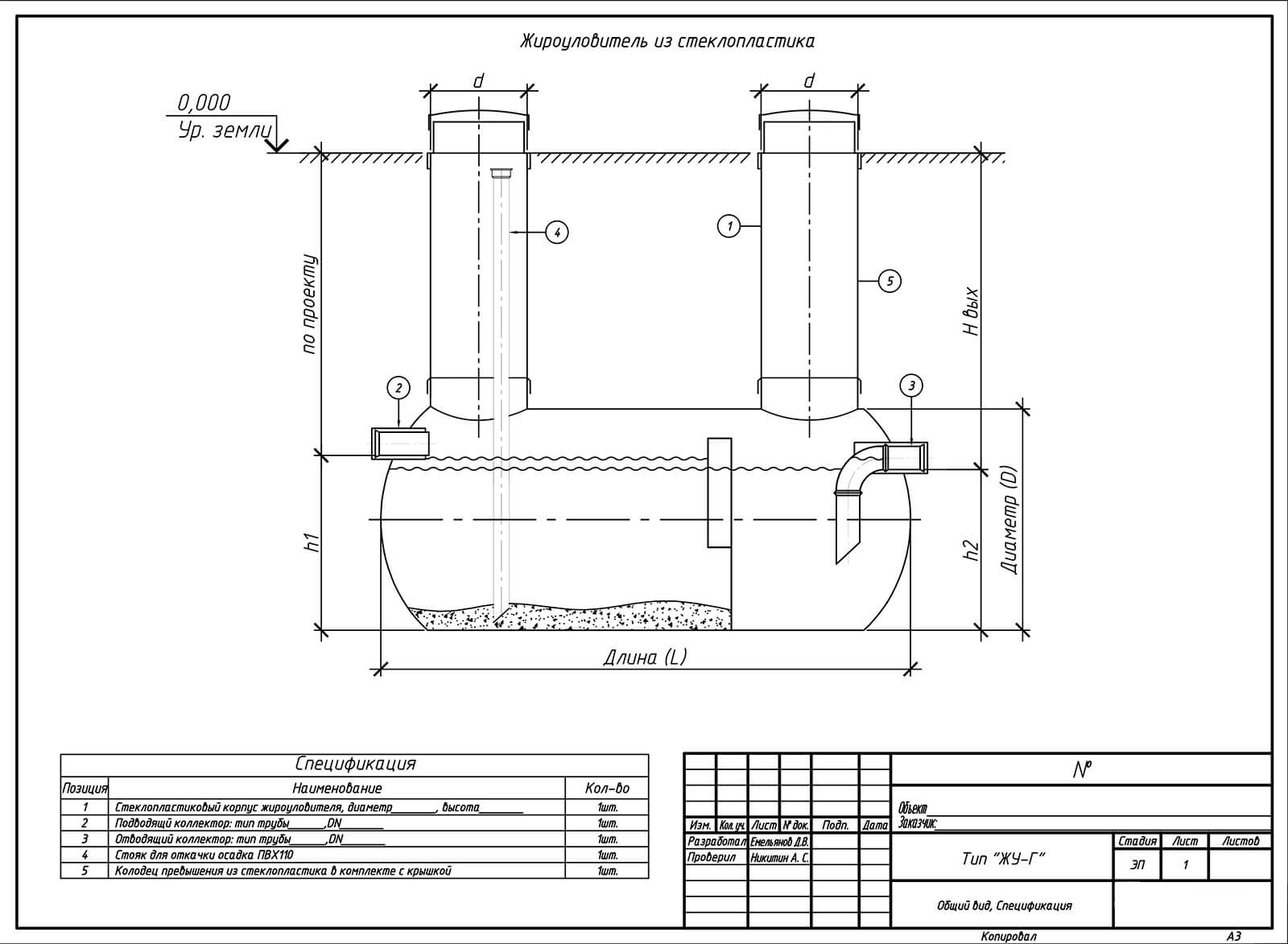
Механизм действия
Функционирование прибора базируется на физических свойствах различных веществ. Процесс очистки реализуется поэтапно:
- Поступление загрязнённых стоков в первичный отсек
- Замедление потока и снижение температуры воды благодаря специальным перегородкам
- Естественное всплытие жировых фракций из-за их меньшей плотности
- Перемещение очищенной жидкости во вторичный отсек
- Финальная стадия фильтрации
- Вывод очищенной воды в канализационную систему
Ключевые достоинства
Установка жироуловителя обеспечивает ряд существенных преимуществ:
- Надежная защита канализации от жировых пробок
- Соответствие экологическим стандартам
- Удобство в установке и последующем обслуживании
- Эффективное устранение неприятных запахов
- Увеличение эксплуатационного срока канализационной системы
- Оптимальное соотношение цены и качества
Области использования
Оборудование находит широкое применение в различных сферах:
- Общественное питание всех форматов
- Пищевая индустрия различного масштаба
- Заведения общепита от небольших кафе до крупных ресторанов
- Молочные производства
- Мясоперерабатывающие комплексы
- Частные домохозяйства
Классификация устройств
По функциональному назначению различают:
- Домашние модели для индивидуального использования
- Промышленные системы для масштабных объектов
По технологии очистки выделяют:
- Механические установки с естественной сепарацией жиров
- Биофильтры на основе микробиологических процессов
- Химические системы с применением специальных реагентов
Факторы выбора оборудования
При подборе оптимального варианта следует учитывать:
- Интенсивность водопотребления
- Параметры канализационной системы
- Габариты помещения для монтажа
- Специфику сточных вод
- Количество подключённых точек водоразбора
- Предпочтения по материалам исполнения
Правила монтажа
Рекомендации по размещению:
- Бытовые варианты устанавливаются под мойкой или в радиусе 5 метров
- Промышленные модели требуют отдельного помещения или подвального размещения
- Оптимальный температурный режим: от +5 до +40°C
- Обязательное соблюдение графика профилактической очистки
Итоговые выводы
Жироуловительное оборудование является критически важным элементом инфраструктуры в местах с высоким содержанием жиров в сточных водах. Грамотный подбор модели в сочетании с регулярным техническим обслуживанием гарантирует стабильную и эффективную работу системы на протяжении длительного периода.









